The two-storey studio in Munich

  • Deal Type
  • For Sell
  • Тype
  • Apartment
  • Area
  • 112 m2
  • Floors
  • 3
  • Rooms
  • 2
Предлагаем 2х комнатную квартиру-студию «двухуровневая» это идеальный вариант для большой семьи и огромный простор фантазии для дизайна. Новый объект недвижимости «классической таунхаус» в уникальном районе Унтерменцинг, на западной стороне Мюнхена.

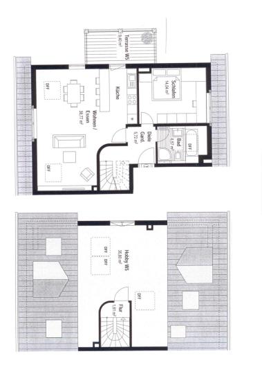
На 1-ом этаже квартиры пасположена кухня с гостиной / столовой, спальня, ванная комната и большой Балкон. Деревянная лестница ведет на второй этаж , в большую студию «35,8 м ²».
Жилой комплекс очень многогранный, он состоит из различных элегантных зданий и больших садов. Унтерменциг считается одним из престижных районов Мюнхена. Больше всего здесь впечатляет окружающая среда вокруг замка Блутенбург, с разнообразными культурными достопримечательностями.
Инфраструктура отличная, транспортная развязка оптимальная:  станция електрички "Untermenzing" расположена примерно в 1 км от обьекта. Отсюда вы можете в 15-ти минутах езды добратся до Карловой площади (Штахус) или (Маринплатц). 
Рестораны,  пивные сады, магазины и торговые центры по близости. 
Не далеко расположены два прекрасных озера «Langwiedersee и Lußsee», для купания и отдыха на прероде.

У нас огромный выбор недвижимости. Вы можете оставить заявку и мы подберём недвижимость в Мюнхене( или Баварии) специально для вас!

подробную информацию о недвижимости вы найдете на нашем сайте: http://ja-realestate.ru/ 
  • Location:
Country:Germany
State:Bavaria
City:Munich
Property Type:Apartment
  • Characteristics
Year of Construction:2015
Rooms:2
Sleeping:2
Number of Kitchens:1
Living Area (m2):79
Total Area (m2):112
  • Facilities
Floor covering:Parquet, Tiles
Bathroom:Tub, Shower, WC, Has Window
Other Facilities:Basement
Security:Smoke detectors
Equipment:Balcony/Terrace
Heating:Gas, Central, Solar panels
Windows:Soundproofing, Sun protection, Heat insulation

449 900 €

527 865 $
42 107 463 ₽

On the map

Other properties of this seller