1-bedroom apartment № C213 with a direct view of the sea and the fortress of the Old Town

  • Deal Type
  • For Sell
  • Тype
  • Apartment
  • Area
  • 64 m2
  • Floors
  • 9
  • Rooms
  • 2
Investment and construction company «Nova Gradnja Budva – Alart Centar-Budva CG» presents you our new project of an exclusive multi-complex «PORTO BUDVA» with access to the street Mediteranska and  Promenade, in the heart of Budva city!

Invest in the construction of housing in the initial stage and earn!

Crisis Solution!

Excellent location of the object, just 20 meters from the beach!

Sea view!

Excellent offer for investment!

Installment 2 years for apartments and 1 year on business premises!

After commissioning of the object, the price will increase by 50%!

We offer more discounts when you buy more than one apartment, and with different methods of payment!

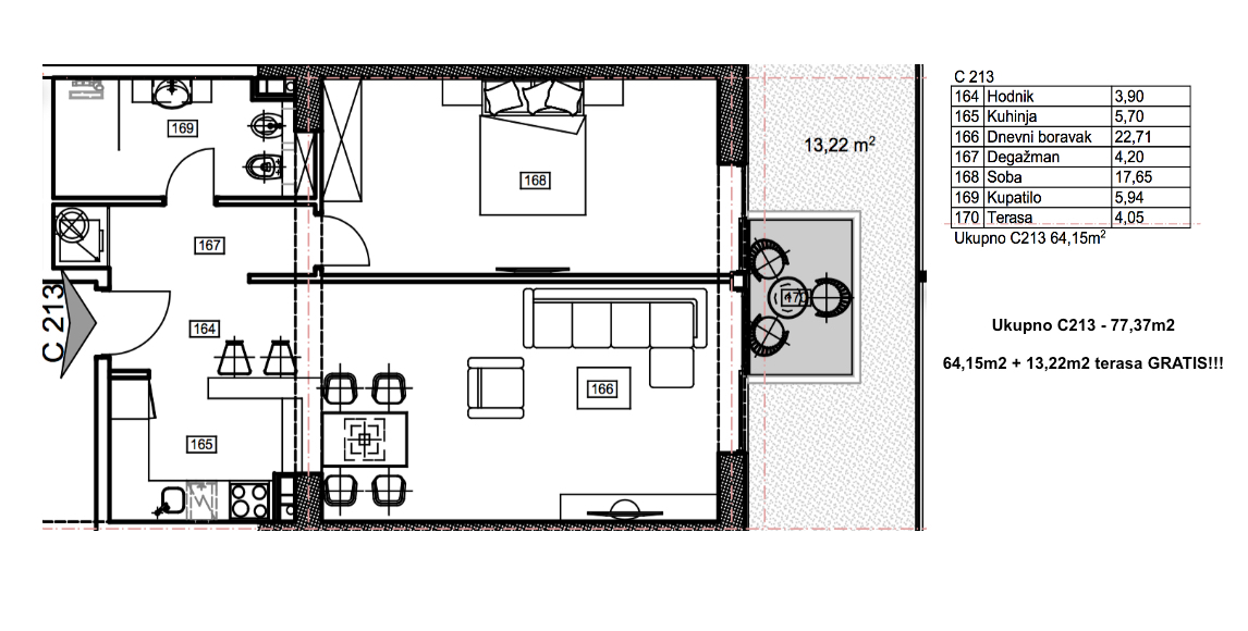
1-bedroom apartment № C213 on 2 floor ( high 4) , total area 64,15 м2  + 13,22 m2  terrace with landscaping as a gift in an exclusive multi-complex «Porto Budva» with a shopping center of 8000 sq.m and a SPA-center 3500 sq.m with a wide range of services, with the medical center, with indoor and outdoor pools!

Apartment on the fourth floor. Ceiling height 3.4 m.

The price of apartments is including designer renovation!

The apartment with a direct view of the sea and the fortress of the Old Town one bedroom apartment, total area is  63,43 sq.m + 13,22 sq.m terrace with landscaping as a gift!

 Price: 3300e / sq.m in installments on a 2-year.

Monthly fee for maintenance of the house 0,50 e/m2 (elevator maintenance, cleaning of common internal premises and adjacent territory).

The apartment consists of:

Living room with the adjoining kitchen 22, 71 sq.m

Bedroom 17,65  sq.m

Dressing 4,20  sq.m

Terrace 4.05 sq.m

WC 5,94 sq.m

kitchen 5,70 m2

hallway  3,90 m2

Interior decoration / design repair!

Rooms:

Dropped ceilings

Lighting

Wallpaper

Heated floors

Oak parquet 1st class

Bathroom:

Plumbing: Villeroy & Boch (shower or bathtub)

Marble

Granite firm “Travertine”

Mosaic tiles of Venetian glass firm “Valentino”

Heated floors

Facade: granite beige firm “Travertine”, three-chamber profiles windows.

Management Company provides services to resale and rent your apartment throughout the year!

Surveillance!

The price of apartments includes the cost of designer finishes premium!

Additional equipment according to your wishes!

Ability redevelopment apartment under construction!

All materials for the apartments, you can directly choose from us!

Full support of the transaction!

For clients with free legal services!

When purchasing real estate granted a residence permit in Montenegro for a year!

Completion date  – the end of 2018.
С уважениeм/Best regards/Sa poštovanjem

Ana Golubović
Sales Director
Tel/Viber/Whats App:+382 68 132 995
Invest and construction company "Alart Centar-Budva CG" 
SHOPPING CENTAR & APARTMENTS "PORTO BUDVA"
www.portobudva.me 
www.chernogoriyastroyinvest.com

8 800 2001333 бесплатный звонок для России 

С уважениeм/Best regards/Sa poštovanjem

Ana Golubović - Sales Director
+38268132 995
 

  • Location:
Country:Montenegro
State:Budva Municipality
City:Budva
Property Type:Apartment
  • Characteristics
Year of Construction:2018
Rooms:2
Sleeping:1
Number of Kitchens:1
Number of toilets:1
Living Area (m2):64
Land plot (m2):6000
  • Facilities
Floor covering:Tiles, Laminate, Parquet, Carpet, Wooden floor, Marble floor
Bathroom:Shower
Security:Alarm system, CCTV, Emergency call for help, Security guard, Smoke detectors
Equipment:Elevator, Garden, Balcony/Terrace, Air conditioning, Fireplace, Sauna
Heating:Electrical
Furniture:Absent
Glass Frames:Aluminum
Windows:Soundproofing, Sun protection, Heat insulation, Armored glass
Window View:Sea/Ocean View, Of the Old Town

211 695 €

248 268 $
19 780 801 ₽

On the map

Other properties of this seller