New Life Residence Project

  • Deal Type
  • For Sell
  • Тype
  • Plot
  • Area
  • 8560 m2
  • Floors
  • -
  • Rooms
  • -
SALE!!! Price   542 250 EUR (75 EUR/sq.m..) –> 469 950 EUR (65 EUR/sq.m.)

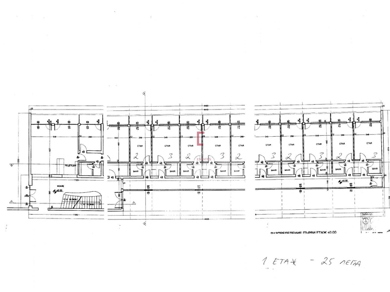
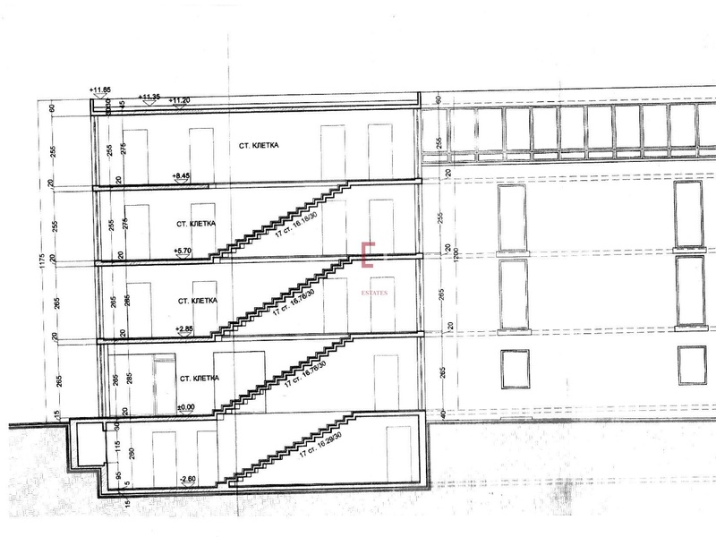
We offer to your plat with a conceptual design of building, located in the resort complex “Chaika”. The plot is situated on 7269 sq.m. and is sold along with the buildings built on it: part of a hotel – 4 floors and a ground floor with a built up area of 433 sq.m. and a total area of 2110 square meters, a restaurant with a kitchen and storage facilities, with a warm connection with the hotel part – 2 floors with built up area of 327 sq.m. and the total built up area of 654 sq.m . The project provides for the construction of apartment building along with reconstruction and modernization of existing buildings in same architectural style.
Excellently located, the property is situated in a quiet location with ease of access (asphalted road), near bus stations, grocery stores and many other. The area is a preferred destination for tourism all year-round. The place has extensive space with a beautiful sea view, surrounded by a lot of greenery. In the vicinity, buildings are no more than 4 – 5 floors.

The conceptual design develops a total area of 8560 m2 or about 100 apartments with different sizes, layout and functionality.

The plot has sealed reservoir with  water with a diameter of 250 mm which gives the opportunity for the construction of a spa and wellness center.

The existing NEW LIFE Residence project includes:
Geological inspection of the site.
Seismological inspection of the existing buildings.
Check and trace of borders of the site.
Detailed construction plan.
The ready architectural and engineering project – on reconstruction of the existing building and on construction of the new case.
  • Location:
Country:Bulgaria
State:Varna
City:Varna
Property Type:Plot
  • Characteristics
Living Area (m2):8560
  • Facilities
Window View:Sea/Ocean View, Forest View, Garden view, Other

469 950 €

543 977 $
44 237 000 ₽

On the map

Other properties of this seller