One bedroom A803 flat with sea view

  • Deal Type
  • For Sell
  • Тype
  • Apartment
  • Area
  • 54 m2
  • Floors
  • 9
  • Rooms
  • 2
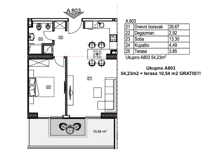
1-bedroom apartment number A803 in an exclusive multi-complex «Porto Budva» with a shopping center of 8000 sq.m and a SPA-center 3500 sq.m with a wide range of services, with indoor and outdoor pools! 

The apartment is on the 8 floor. Ceiling height 3.4 m.

The price of apartments is on interior “turnkey” with designer renovation!

The apartment with a direct view of the sea and the fortress of the Old Town one bedroom apartment total area 52.21 sq.m + terrace with landscaping as a gift!

Monthly fee for maintenance of the house 0,50 e/m2 (elevator maintenance, cleaning of common internal premises and adjacent territory).

The apartment consists of:

Living room with the adjoining kitchen 27.86 sq.m

Bedroom 13.30 sq.m

Dressing 2.71 sq.m

WC 4.49 sq.m

Terrace 3.85 sq.m

Rooms:

Dropped ceilings

Lighting

Wallpaper

Heated floors

Oak parquet 1st class

Bathroom:

Plumbing: Villeroy & Boch (shower or bathtub)

Marble

Granite firm “Travertine”

Mosaic tiles of Venetian glass firm “Valentino”

Heated floors

Facade: granite beige firm “Travertine”, three-chamber profiles windows.

Management Company provides services to resale and rent your apartment throughout the year!

Surveillance!

The price of apartments includes the cost of designer finishes premium!

Additional equipment according to your wishes!

Ability redevelopment apartment under construction!

All materials for the apartments, you can directly choose from us!

Full support of the transaction!

For clients with free legal services!

When purchasing real estate granted a residence permit in Montenegro for a year!

Completion date  – the end of 2018
С уважениeм/Best regards/Sa poštovanjem

Ana Golubović
Sales Director
Tel/Viber/Whats App:+382 68 132 995
Invest and construction company "Alart Centar-Budva CG" 
SHOPPING CENTAR & APARTMENTS "PORTO BUDVA"
www.portobudva.me 
www.chernogoriyastroyinvest.com

8 800 2001333 бесплатный звонок для России 

С уважениeм/Best regards/Sa poštovanjem

Ana Golubović - Sales Director
+38268132 995
  • Location:
Country:Montenegro
State:Budva Municipality
City:Budva
Property Type:Apartment
  • Characteristics
Year of Construction:2018
Rooms:2
Sleeping:1
Number of toilets:1
Living Area (m2):54
Land plot (m2):6000
  • Facilities
Floor covering:Tiles, Laminate, Parquet, Carpet, Wooden floor, Marble floor, Other
Type of Kitchen:Open area kitchen
Bathroom:Shower
Other Facilities:Pantry, Wardrobe, Guest WC
Security:Alarm system, CCTV, Emergency call for help, Security guard, Smoke detectors
Equipment:Elevator, Winter garden, Balcony/Terrace, Air conditioning, Sauna
Heating:Electrical
Furniture:Absent
Glass Frames:Aluminum
Windows:Soundproofing, Sun protection, Heat insulation, Armored glass
Window View:Sea/Ocean View

250 608 €

293 599 $
23 623 290 ₽

On the map

Other properties of this seller