The complex of two buildings connected to each other in Lisbon , Portugal

  • Deal Type
  • For Sell
  • Тype
  • Castle / mansion
  • Area
  • 1947 m2
  • Floors
  • 4
  • Rooms
  • 10
Комплекс из двух объединенных между собой зданий в Лиссабоне, Португалия
 2 000 000 евро
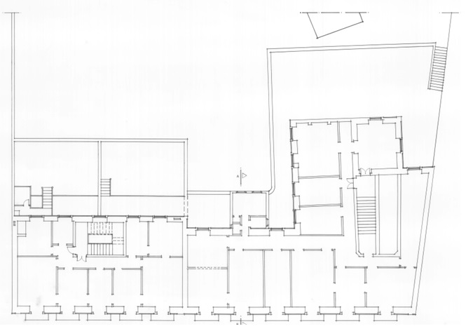
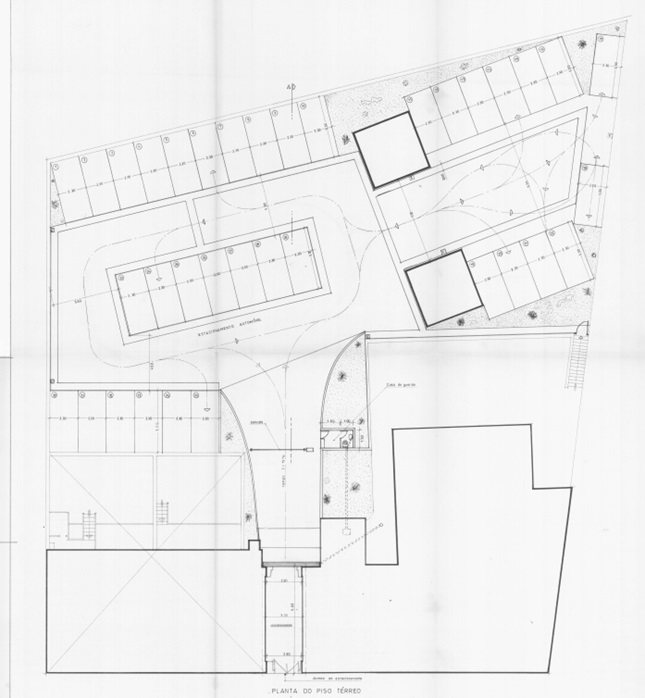
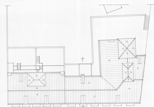
Комплекс сотоит из двух объединенных между собой зданий  общей площадью 1947 кв.м ,из автостоянки на 37 мест площадью 1200 кв.м и сада площадью 166 кв.м
Эти здания были отреставрированы в начале ХХ века одним из самых известных в то  время архитектором Португалии Паулем Лино. Дома состояли из двух этажей и принадлежали  маркизам Абрантским, чье происхождение приходится на первую половину ХVIII века. Во время реставрационных работ были сохранены главные элементы архитектуры , такие как мраморная лестница и прихожая, выложенная декоративной плиткой.
Сегодня эти дома представляют собой одно большое здание, имеющее три этажа и мансарду, а так же башню, в которой находится зал для приемов, из окон которого  открывается великолепный вид на реку Тежу .
Эти здания расположены в красивейшем районе на берегу реки, который обслуживается многочисленным общественным транспортом. Добраться до Торговой площади в центре Лиссабона можно всего а 7 минут.


Мы, риэлторское агенство , которое работает на португальском и зарубежных рынках. Наша задача заключается в продаже недвижимости по максимально выгодным ценам.  Сотрудничество с ними будет основываться в первую очередь на ответственности и доверии с обоих сторон.
Иностранные инвесторы не знакомы со многими вариантами объектов недвижимости в Португалии, а так же определения степени деградации и оценки здания.
Услуги, которые мы предоставляем:
•	подыскиваем недвижимость, которая соответствует запросам клиента
•	инвестиционные исследования и переговоры с владельцем
•	помощь в решении вопросов с должностными лицами, включая муниципалитеты 
•	архитекторские и инженерские проекты в случае реконструкции здания
•	осмотр и анализ зданий
•	помошь в строительных работах
Нынешний экономическтй климат позволяет производить хорошие экономические инвестиции в недвижимость Португалии. Особенно если инвестор поищет объекты, расположенные в центре Лиссабона, в таких районах как Шиадо, Байша, Принципе Реал , Авенида да Либердаде, Парк Наций ,а так же в городах Кашкайш и Эшторил, которые находятся рядом с морем. 

+351 913718931 Валерия  ( португальский, русский)
+351 918376520 Серджио (португальский, испанский, английский)
  • Location:
Country:Portugal
State:Lisbon
City:Lisbon
Property Type:Castle / mansion
  • Characteristics
Year of Construction:1907
Rooms:10
Sleeping:10
Living Area (m2):1947
  • Facilities

2 000 000 €

2 352 363 $
186 980 693 ₽

On the map

Other properties of this seller